Introducción.
En el presente trabajo se estudian los tipos más comunes de modelos histeréticos usados para la modelación de elementos viga-columna de concreto armado, se ha prestado especial atención a los modelos plásticos, inelástico,Takeda y el modelo de Clough, por ser los de mayor difusión en el análisis estructural y en la evaluación del desempeño sísmico. Además se han llevado a cabo análisis tiempo historia no lineales usando el modelo de plasticidad concentrada de Giberson, obteniendo la respuesta sísmica de una estructura típica con diferentes modelos histeréticos; finalmente se ha hecho un análisis comparativo de los efectos de usar un modelo u otro en la respuesta estructural.
Modelo estudiado.
 |
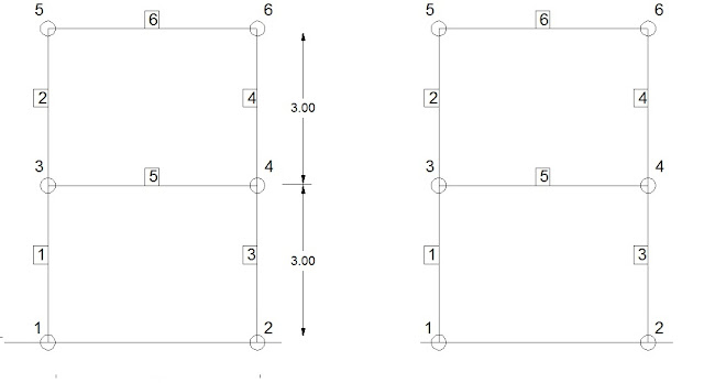
| Figura 1: Pórtico de dos niveles y una crujía, a) dimensiones y b) modelo analítico.
|
La Figura 1, consiste de un pórtico de una crujía de dos niveles diseñada en concreto armado, las cargas gravitacionales sobre este pórtico son debidas a las cargas de muertas (Losa: 300 kg/m2, Carga muerta: 200 kg/m2); mientras que cargas vivas consideradas fueron de 300 kg/m2.
 |
| Figura 2: Secciones de concreto armado consideradas para el pórtico.
|
Secciones de concreto armado.
Las secciones de concreto armado consideradas para el pórtico estudiado se muestran en la Figura 2, el espaciamiento de los estribos en las zonas críticas fue de 10 cm.
Curvas esfuerzo deformación de los materiales.
 |
| Figura 3: Curva esfuerzo deformación del acero de refuerzo
|
En la Figura 3 se muestra la curva esfuerzo deformación del acero de refuerzo usado en las secciones de concreto armado, como se puede apreciar, la misma figura el esfuerzo de fluencia se da a los 43000 t/m2, mientras que la deformación unitaria última fue de 0.09.
Se muestra la curva esfuerzo deformación del concreto sin confinar de resistencia a la compresión simple de 280 kg/cm2, como se puede notar del mismo gráfico la deformación unitaria a la que se alcanzó esta deformación fue de 0.002, mientras que la deformación última fue de 0.0045.
 |
| Figura 4: Curva esfuerzo deformación del concreto sin confinar.
|
 |
| Figura 5: Curva esfuerzo deformación de concreto confinado. |
Adicionalmente en la Figura 5 se presenta la curva esfuerzo deformación del concreto dentro de los estribos de acero, para la obtención de esta curva se hizo uso del modelo de Mander; como se puede ver del gráfico, debido al buen nivel de confinamiento del concreto, la resistencia a la compresión tuvo un incremento significativo alcanzando los 500 kg/cm2. Adicionalmente su capacidad de deformación tuvo un incremento notable, pasando de 0.0045 a 0.04.
Diagramas momento curvatura.
Los diagramas momento curvatura son gráficos en los que se representa la relación entre los momentos flectores aplicados a determinada sección y los correspondientes niveles de curvatura, en este tipo de gráficos se puede observar que en general los elementos de concreto armado son no lineales.
 |
| Figura 6: Diagrama momento curvatura de columnas estudiada.
|
 |
Figura 7: Diagrama momento curvatura de viga estudiada.
|
No hay comentarios:
Publicar un comentario